O projekte
Ponuka bytov
Vizualizácia
Galéria
Lokalita
Kontakt
☰
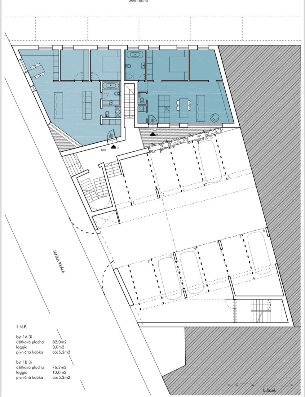
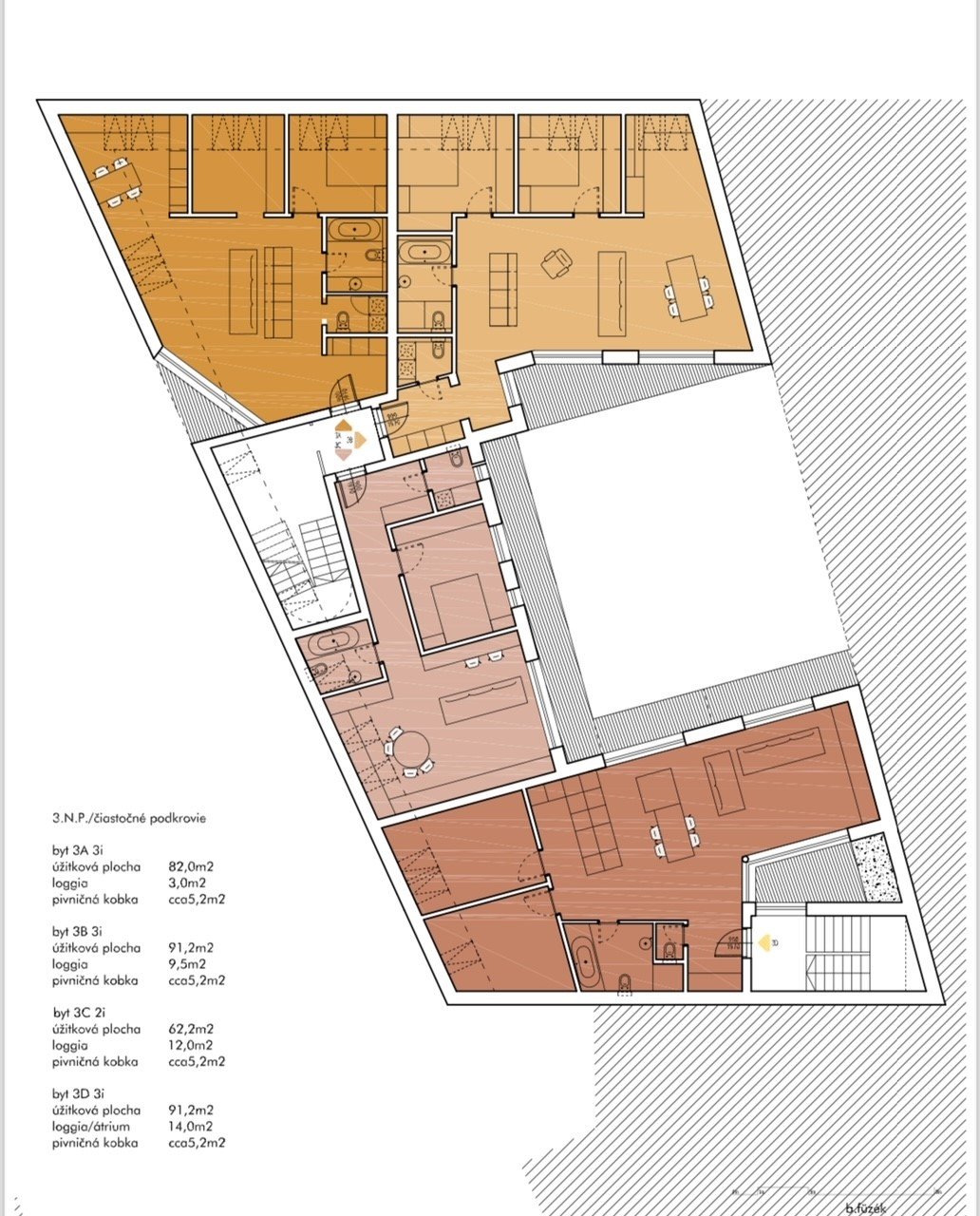
Ponuka bytov
Dispozícia
2i
3i
Poschodie
1
2
3
Stav
voľný
rezervovaný
predaný
Filtrovať
Reset
Zobrazené: 0 bytov